手车式断路器
|
一. 产品概述
WL-r系列真空断路器是意大利SAREL SRL电气在电力系统中压领域三十年的技术结晶,适用于所有高压变电站中的中压一次配电,可用于保护变压器、发电机和电容器组。产品采用模块化设计,适用于户内空气绝缘的开关柜,外形尺寸和配柜联锁方式与同类标准产品完全兼容,具有使用方便、高可靠性、高安全性等特点。
二. 依据标准
WL-r系列真空断路器遵循如下标准:
GB1984 《高压交流断路器》
JB3855 《3.6~40.5kV户内交流高压真空断路器》
DL/T403 《12~40.5kV高压真空断路器订货技术条件》
IEC62271-100 《高压开关设备和控制设备 第100部分:交流断路器》
三. 使用条件
a.环境温度:上限+40℃,下限-25℃
b.海拔:不超过2000m
c.相对湿度:月平均不大于90%,日平均不大于90%
d.场所:户内,无火灾、易燃、爆炸危险
f.地震烈度:不超过8度
注:若用户偏离正常使用条件可与制造厂家协商
四.主要技术参数 
五.机械特性参数
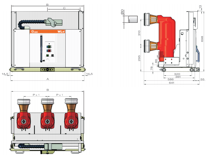
六.外形图
(一)630~1250A/25~31.5kA,1600A/31.5kA手车式断路器外形图

(二)1250~1600A/40kA,2000A/31.5~40kA手车式断路器外形图

(三)2500~3100~4000A/31.5~40kA手车式断路器外形图




